cz

Kindergarten Husova



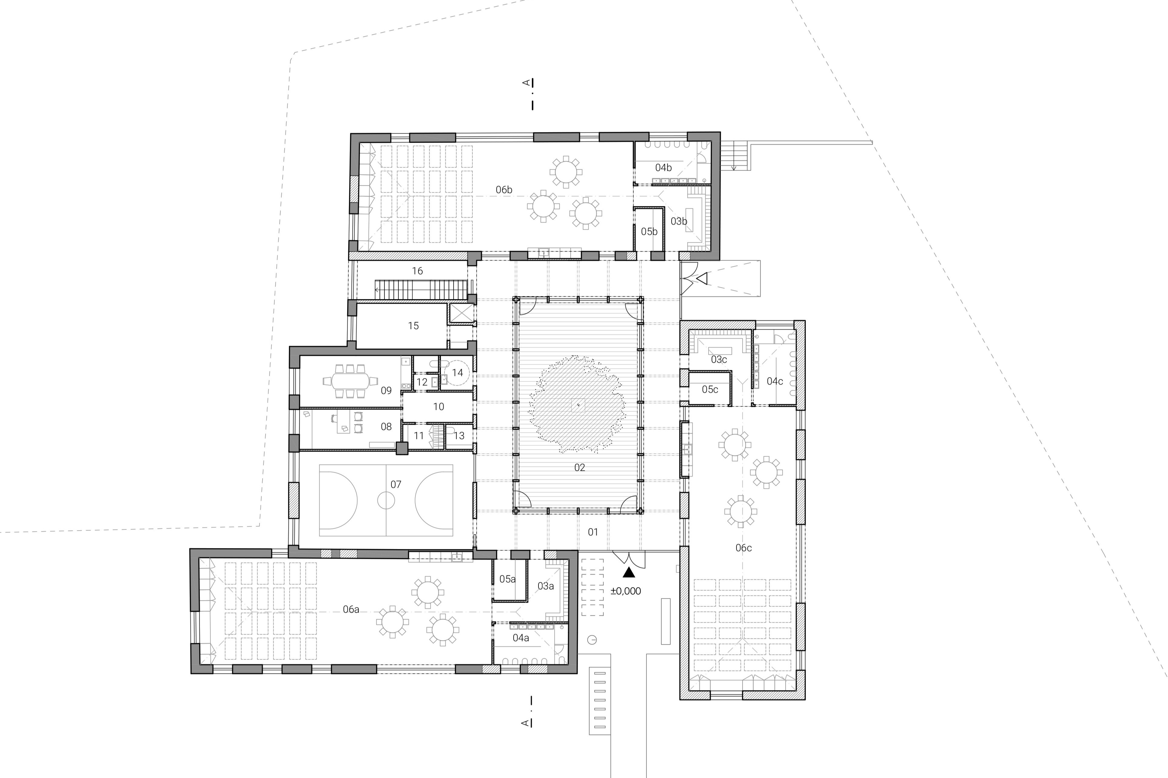
Inspirací návrhu byla od počátku dětská čistota, optimismus a nezatíženost. Stejně jako dětský pohyb, hra, vnímání světa, světla a prostoru. Výchozím rozhodnutím našeho návrhu je nebourat, ale pracovat se stávající budovou s respektem. Věříme, že stavba, ve své figuře i materialitě, obsahuje vzpomínky obyvatel města, kteří v ní vyrůstali. Současný slepenec přístaveb očišťujeme na původní, základní tvary, aby mohlo vzniknou jednoduché a srozumitelné stavebně provozní schéma - 3 domky tříd a 1 objekt veškerého zázemí. Vše rozmístěné kolem pobytového atria - nového srdce školky. Atrium prosvětluje třídy i přidružené prostory, vytváří prostor pro dětské aktivity a jeho ambit (chodba po obvodu) umožňuje propojení a obsluhu všech tříd suchou nohou.

Název projektu:  Stavební úpravy a přístavba MŠ Husova Moravské Budějovice
Klient:  Město Moravské Budějovice
Stupeň:  Soutěž ČKA, 2024
Autor:  Michal Šrámek, Josef Krejčí, Ondřej Toman
Spolupráce: Marie Blahová, Johana Simkovičková



© 2017 Ateliér Šrámek a Krejčí      powered by Petr Kubík      přihlášení