cz

Rekonstrukce a novostavba v Josefově Dole



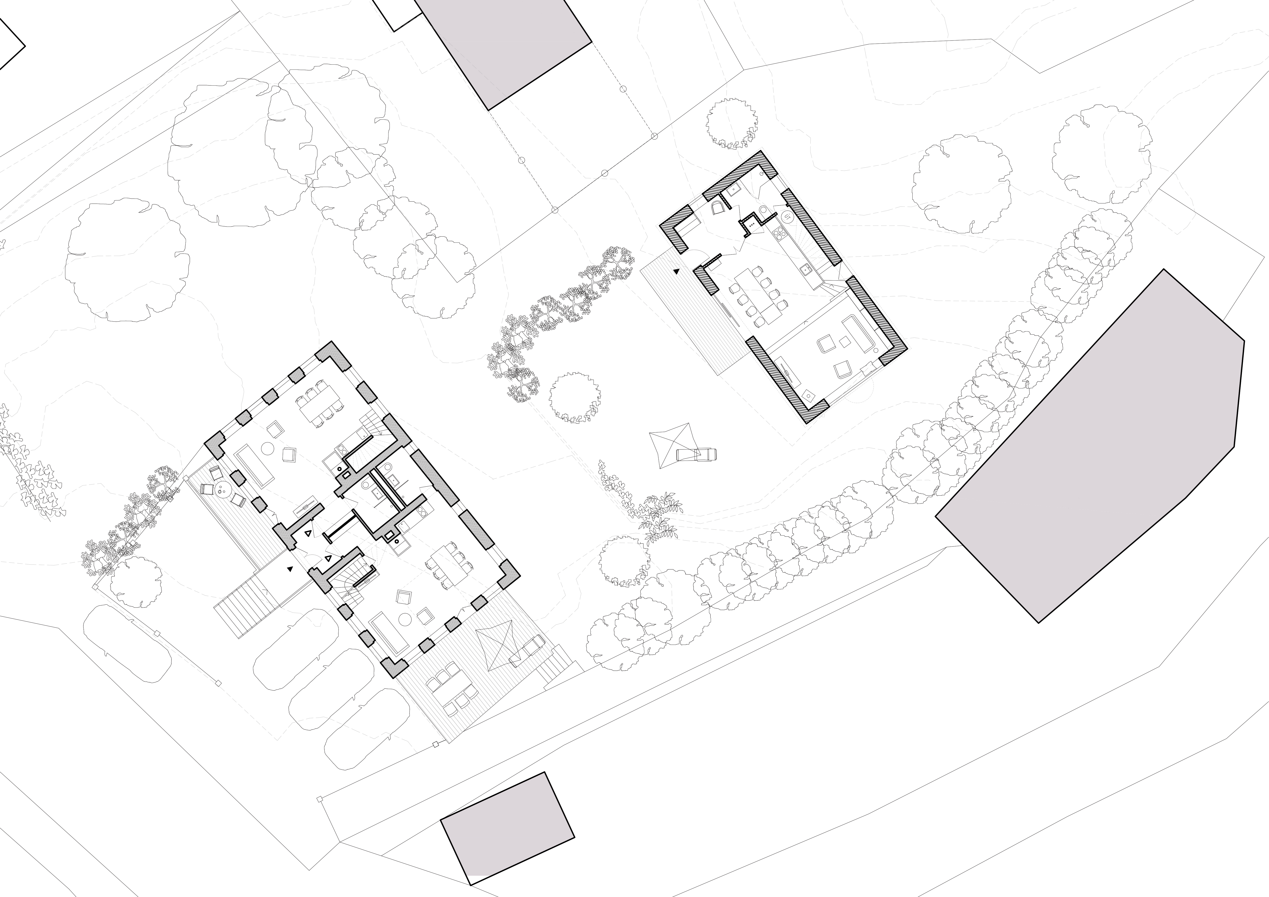
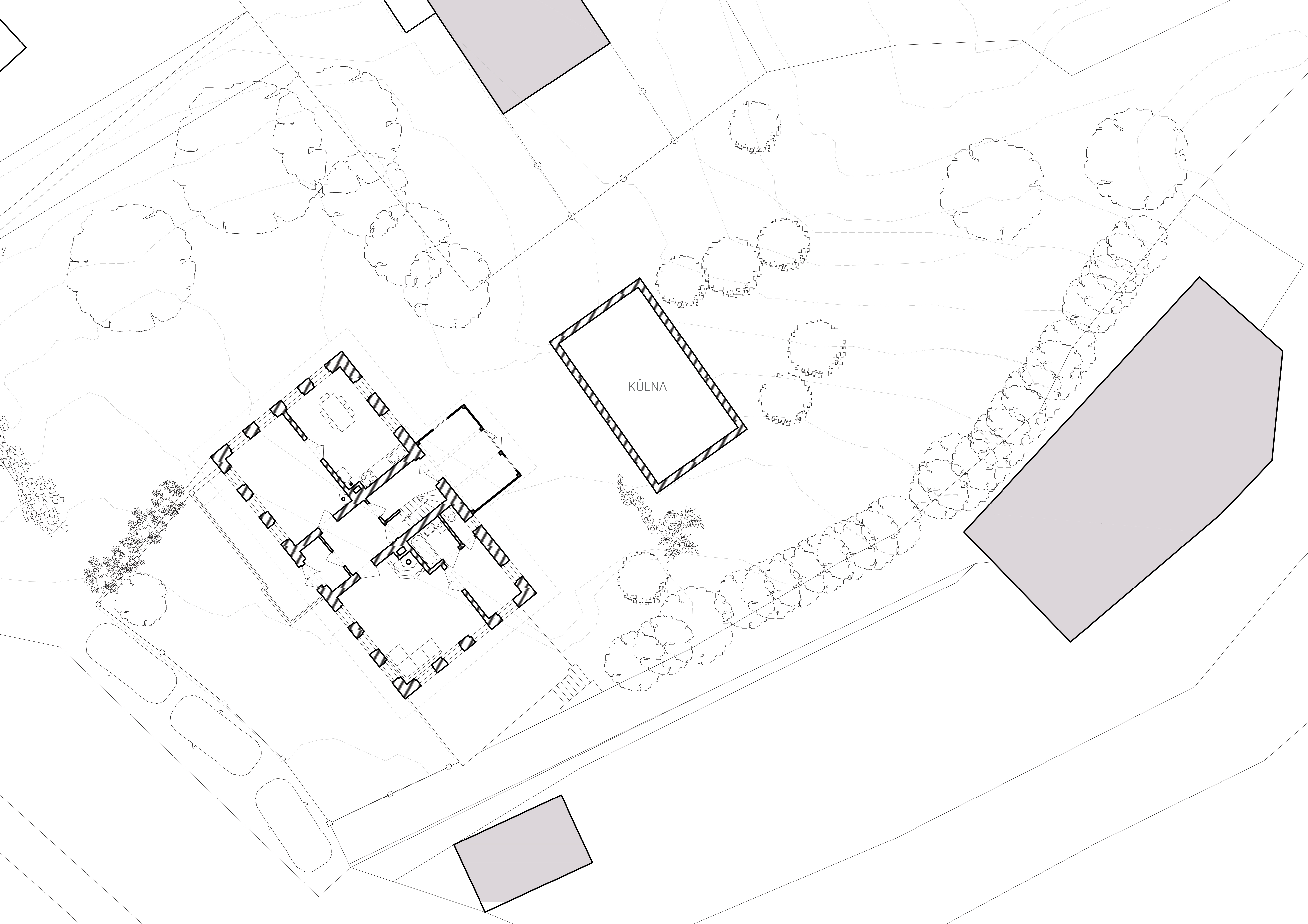
Rekonstrukce obytného objektu

Zásady rekonstrukce vyplynuly z konzultace s budoucími obyvateli budovy a vycházejí z jejich požadavků v rámci finančních limitů akce. K dosažení zadaného cíle byla dispozice rozdělena na 2 poloviny a každá polovina bude propojena s ložnicovou částí v podkroví. Dělící stěny v obou polovinách dispozice budou odstraněny a prostory sjednoceny. Střední chodba rozdělena na společné zádveří, dvě předsíně před každou jednotkou a v zadní části chodby budou umístěny 2 sanitární jednotky umyvadlem, toaletou a sprchou. V obou obytných prostorech bude instalována malá kuchyňská linka, krbová kamna a schody do podkroví. Obě části podkroví budou ve střešní rovině doizolovány pod novou plechovou krytinu a v krovu budou instalovány ložnice, vlevo dělená na tři malé místnosti a vpravo jedna velká jednoprostorová, vše dle přání budoucích uživatelů. Schodiště mezi obytným prostorem a ložnicemi v podkroví budou umístěna v obytných místnostech, v pravé části bude na stejném půdoryse umístěno i nově proražené schodiště do suterénu. Zde je navržena odpočívárna a pod terasou před východním štítem sauna s možností přímého výstupu ven. Na půdorysu chodby budou na úrovni krovu umístěny dvě koupelny.

Novostavba/vejminek

Je navržen jako doplňková stavba v pozemku. Jde o objekt, který nahradí odstraněnou
kůlnu. Zděná budova se sedlovou střechou je umístěna po vrstevnici svahu.
V přízemí je malá předsíň a obytný prostor s kuchyňskou linkou, v patře je koupelna a
4 malé pokoje pro rodinu o 3 dětech. Dům bude obložen dřevem, střecha kryta na
antracit barveným plechem. Podél jižní fasády bude provedena malá kamenná terasa.

Název projektu:  Rekonstrukce obytné budovy v Josefově dole a novostavba rekreačního objektu
Klient:  Soukromí investor
Termín:  Studie- 2022-2023, DÚR+DSP- 2023-
Autor:  Michal Šrámek, Ondřej Toman



© 2017 Ateliér Šrámek a Krejčí      powered by Petr Kubík      přihlášení