PROJECTS
ABOUT US
CONTACT
cz
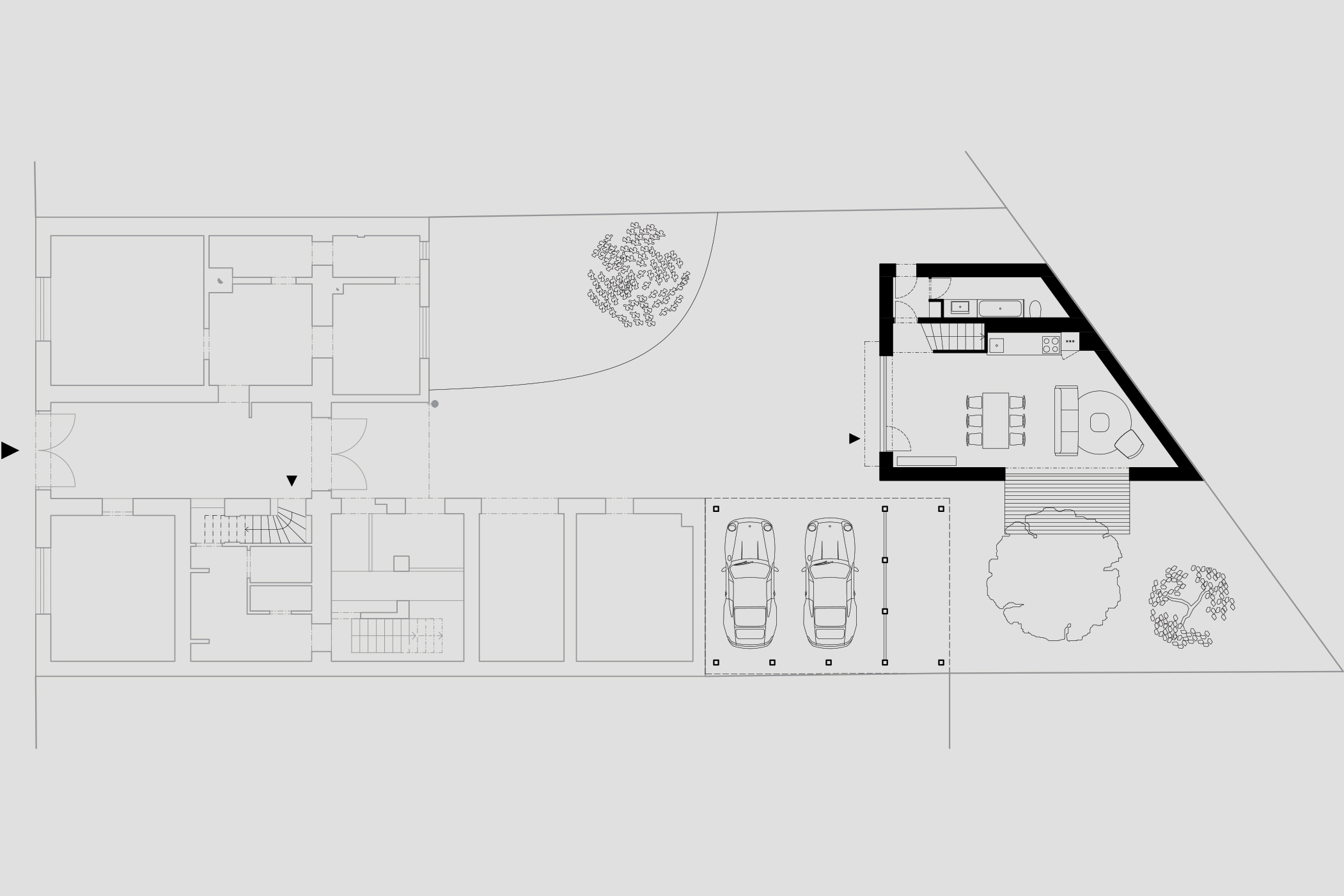
Family house in Drnovice
© 2017 Ateliér Šrámek a Krejčí powered by
Petr Kubík
přihlášení