cz

Revitalization of Mayer´s factory



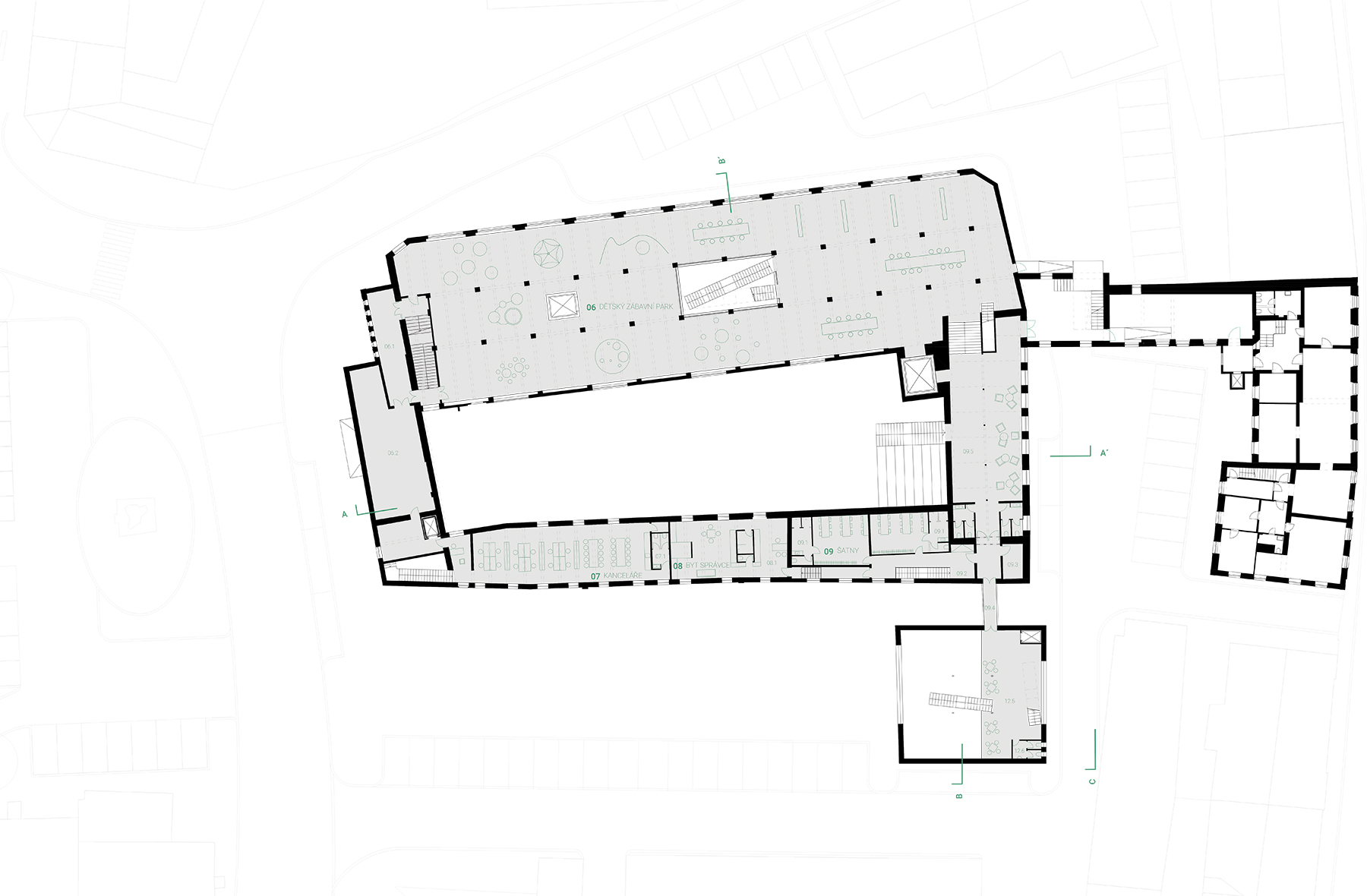
Navrhujeme přiblížit areál stavu z poloviny 20. století, patrného z dobových fotografií, zbouráním nehodnotných administrativních staveb Strojtexu. Neobnovujeme stav však doslovně, vzniká zde nová funkce s novým významem pro město. Špalíček budov s centrálním prostorem a jedním výrazným domem stranou. Toto potvrzujeme zbouráním světlíku, na jehož místě vzniká dvorana s prosklenou střechou, orientační střed, ze kterého se rozbíhají různé expozice. Zároveň však slouží jako sál s jedinečnými industriálními kulisami pro pestré kulturní využití. Ten neposedný dům stranou je loutkovým divadlem, s kavárnou ve foyer. Bez okolků projevuje svůj charakter. Před ním je prostranství se stromy, doplněné lavičkami a kašnami. Mimochodem, továrna bez komína nemůže být – ve předu u silnice je vztyčena socha – poutačkomín! Z nejvyšší stavby – z třípodlažní haly je jedinečný výhled na město a okolní krajinu, jejíž patronkou je nedaleká Zvičina. Nechtěli jsme nechat střechu zapovězenou, proto jsme ji zpřístupnili. Navrhujeme zde terasu pro pořádání večírků, dětské hřiště a trávník na piknik. Prostor střechy vymezuje síť, vytvářející komornější, bezpečnější atmosféru, zároveň budovu třípodlažní haly síť nastavuje a podtrhuje její výjimečnost. Továrna, špalíček budov, se stává svébytným místem se společenským významem nejen pro obyvatele Dvora, ale i pro turisty. Areál továrny je vymezen vlastní dlažbou, stává se ostrovem kultury, odpočinku i zábavy. Zásadní je její otevřenost, aby tepala životem po celý den. Proto počítáme se třemi, respektive čtyřmi vstupy: z náměstí Republiky, z piazzetty před loutkovým divadlem, a z průjezdu z Tylovi ulice a s bezbariérovým přímým napojením na městskou knihovnu. Parter továrny se tak stává volně přístupnou součástí veřejného prostoru města. Zastřešení dvorany je neseno subtilní vzpinadlovou konstrukcí, která generuje pouze svislé síly do stěn a nenamáha je ohybem. Navržená konstrukce je staticky výhodná a materiálově úsporná.


Název projektu:  Revitalizace areálu bývalé Mayerovy továrny ve Dvoře Králové nad Labem
Klient:  Město Dvůr Králove nad Labem
Adresa:  Náměstí republiky, Dvůr Králové nad Labem
Soutěž:  2021
Autor:  Michal Šrámek, Josef Krejčí, Ondřej Toman
Spolupráce:  Štěpán Perný, Petr Lhoťan, Sára Trojovská, Denisa Řepková, EXCON a.s.



© 2017 Ateliér Šrámek a Krejčí      powered by Petr Kubík      přihlášení