cz

House in Běchovice



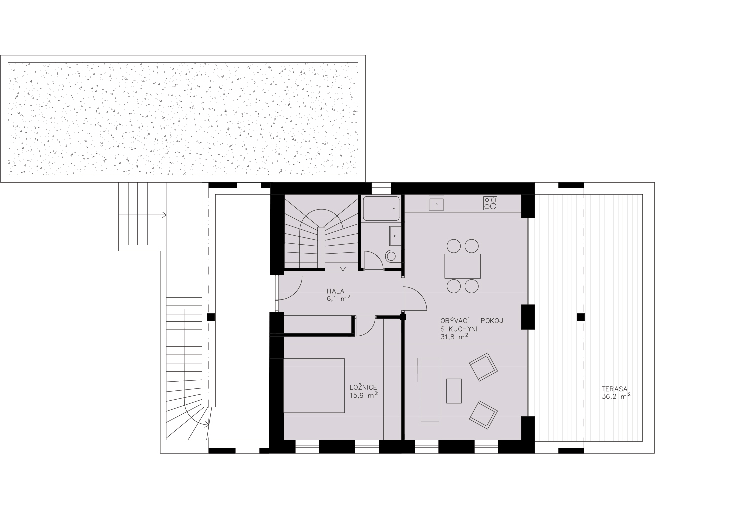
Rekonstrukce a nástavba rodinného domu pro čtyřčlennou rodinu s možností využítí patra jako samostatné bytové jednotky  Ze statických i ekonomický důvodů zůstává zachována většina zdí původního domu, což určuje dispoziční řešení přízemí. Nástavba pak kopíruje tvar nosných zdí, aby nedošlo ke změně zatížení základů.


Název projektu:  Rodinný dům v Běchovicích
Klient:  soukromý investor
Místo:  Běchovice
Termín:  studie 2021, DSP 2022
Autor:  Josef Krejčí, Ondřej Toman
Spolupráce:  Sára Trojovská



© 2017 Ateliér Šrámek a Krejčí      powered by Petr Kubík      přihlášení