cz

City Hall Lázně Bělohrad



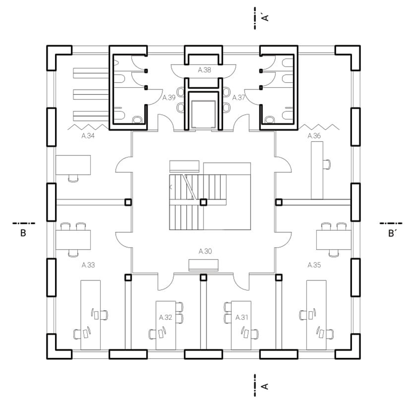
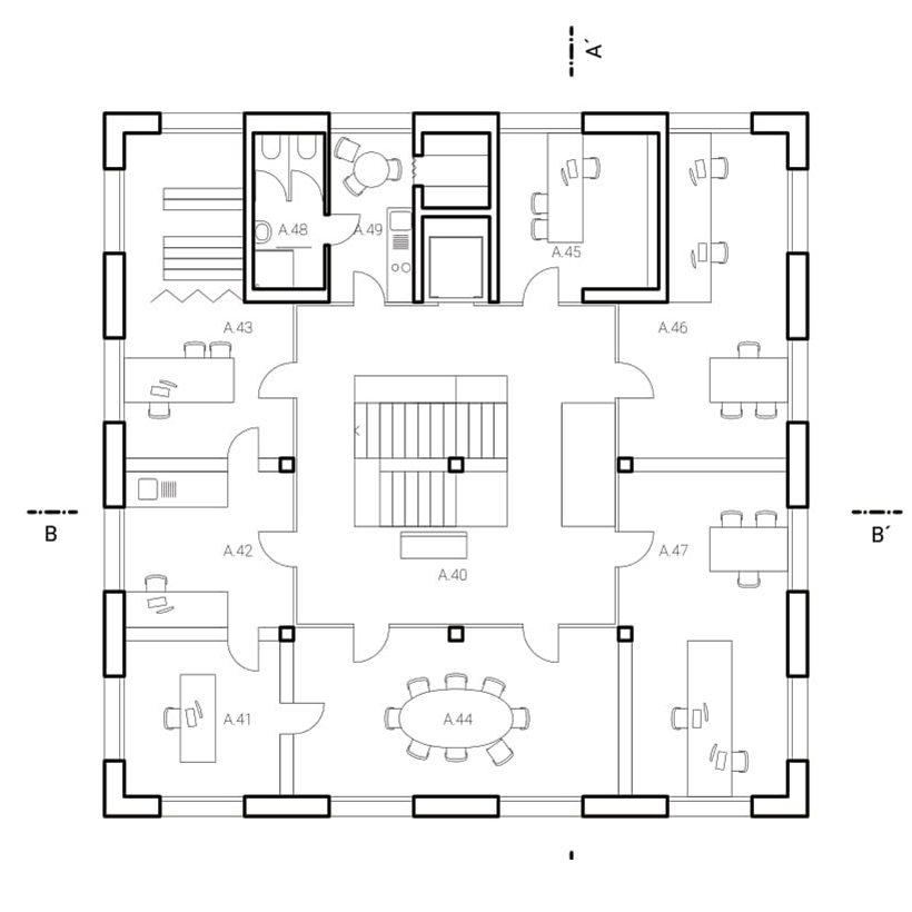
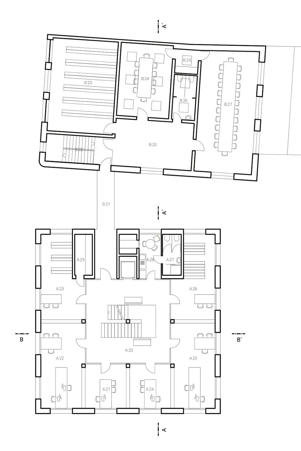
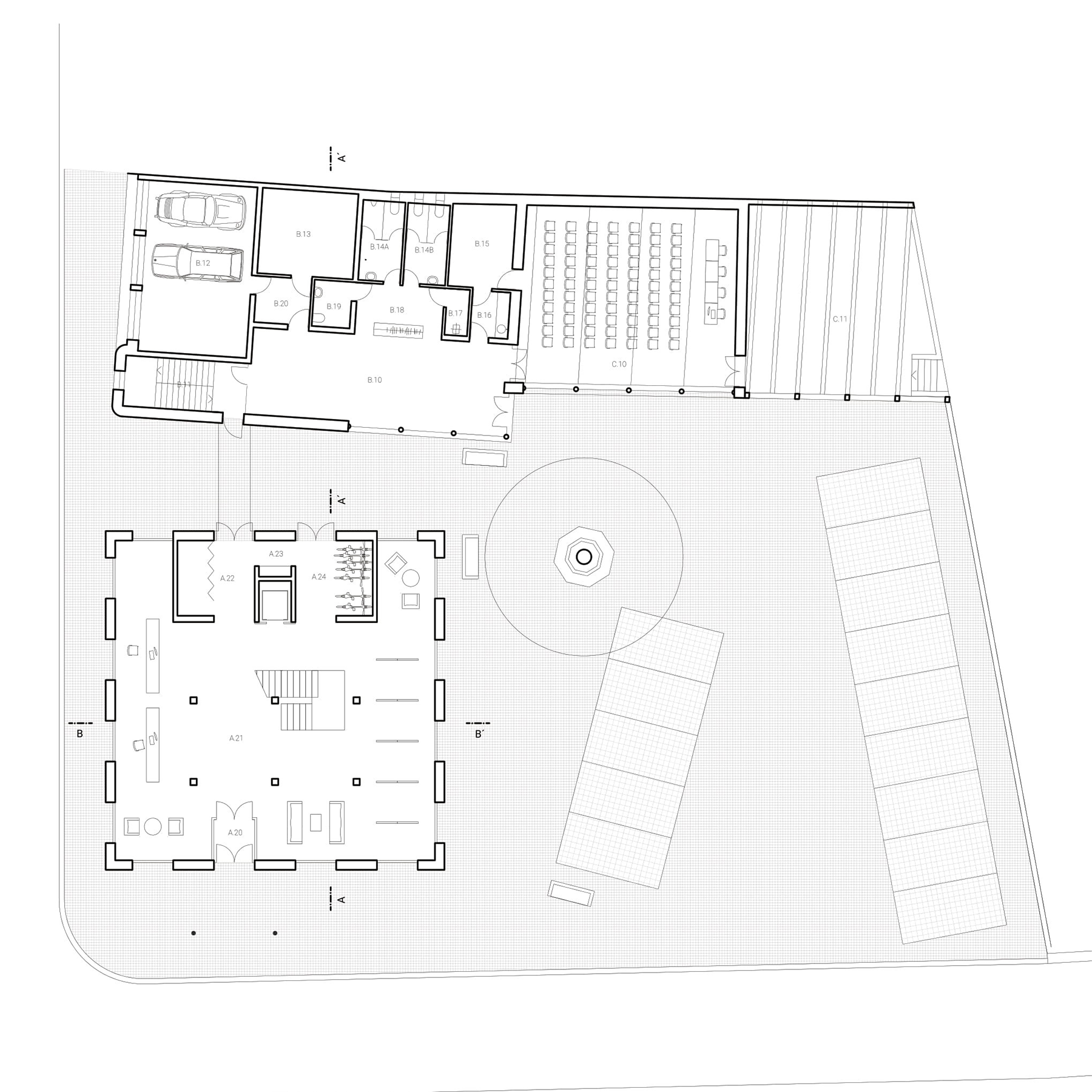
Na konci náměstí. Nebo je to ulice? Energie se vyčerpá na jižní straně - lidé, honosné domy, autobusy, stromy, školáci a turisti. V půli došel náměstí dech a na severní straně není co, není kam. Místo jakoby se zapomnělo. Starý dům v průčelí usnul v jiné době. Takový pěkný, není z nějaké knihy? Nějakého příběhu? Snad tiše šeptá: „nechte mě už jít“. Na tomto místě bude dům nový a ne ledajaký. Zde, na druhé straně náměstí, má vyrůst nová radnice. Od toho se vše odvíjí. Záměrem je posílit severní stranu náměstí tak, aby nabyla na významu i tomu odpovídající formě. Nový sever náměstí nabídne velkorysé řešení s pobytovým charakterem. Na trávou a stromy pokrytou jižní část náměstí odpoví univerzální a svobodná vydlážděná plocha. Na vysoké domy jižního konce odpoví nová radnice s náležitým měřítkem a důstojanou figurou. Nový „Bělohrad“, úřad v kostce.

Název projektu:  Nový městský úřad a úprava okolí ve městě Lázně Bělohrad
Klient:  Město Lázně Bělohrad
Adresa:  Náměstí K.V.Raise, Lázně Bělohrad
Soutěž:  2017
Autor:  Michal Šrámek, Josef Krejčí




© 2017 Ateliér Šrámek a Krejčí      powered by Petr Kubík      přihlášení