cz

Family house in Jaroměř



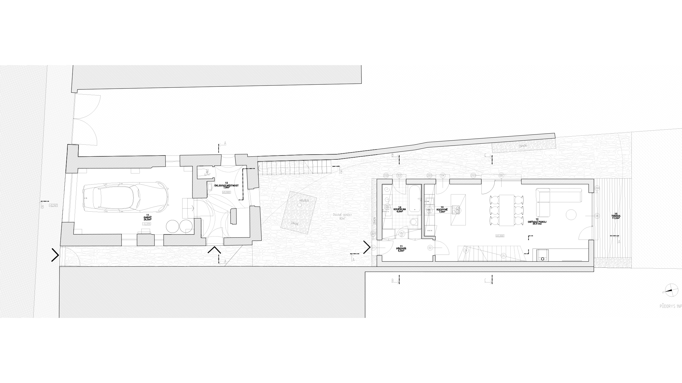
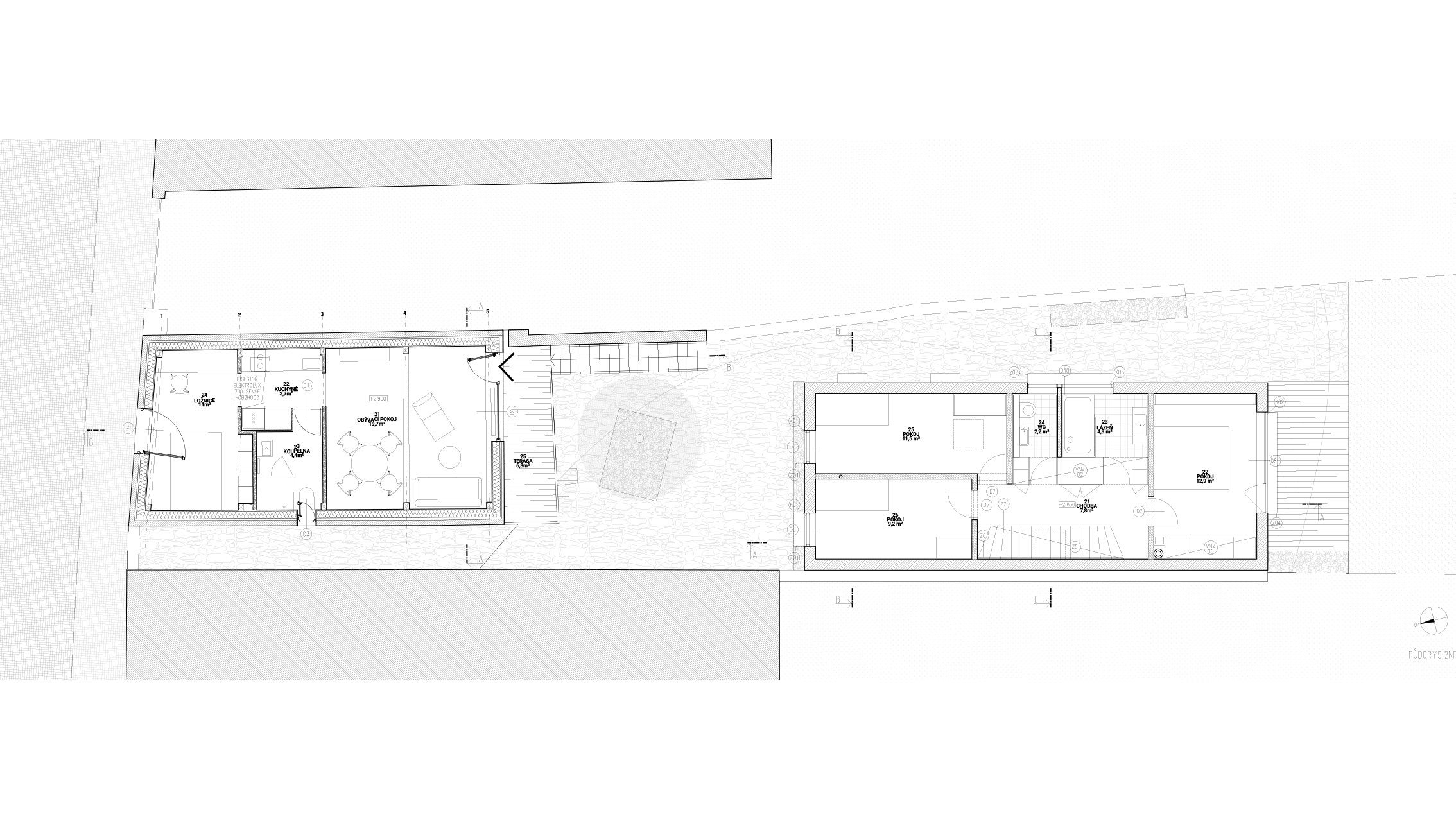
The design of the family house is based on the characteristics of the site itself, the surrounding buildings, and the needs of future users. The house is located on a narrow old plot in a row of houses near St. James Church. The houses face the street with their gables. Halfway through the depth of the plot, the terrain drops steeply into the Elbe valley. The design plans to preserve the oldest part of the existing house for future renovation and transformation, likely into a garage and workshop on the ground floor, and an office with facilities on the upper floor. The actual family house program is located further in the garden behind the retained house and a small courtyard. The narrow plot is illuminated and ventilated by the courtyard, allowing the family house to avoid being squeezed between higher surrounding houses and to open up to the garden with a view, just before the edge of the slope.

The size and layout of the family house reflect the scale of the plot and the needs and possibilities of the investor. The house should be small but must offer everything a family with two children needs. On the ground floor, besides the entrance, there is an open living space with a sofa, dining table, and kitchen, as well as a cloakroom and bathroom. All rooms are connected to the garden by French windows, essentially becoming part of it. A fireplace is placed opposite the sofa. The stairs leading up start directly from the living room, corresponding to the requirement for close family cohabitation. Soft light falls on the staircase from a skylight. Upstairs are 2 children's rooms facing the courtyard, a bedroom facing the garden, a bathroom with east-facing windows, and a toilet.

The house has 2 above-ground floors. It is designed with ceramic bricks filled with mineral wool, Porotherm 30 T Profi, 30cm thick. The ceilings are designed to be 25cm thick, made of Miako ceramic inserts filled with concrete. On the ground floor, windows extend from floor to ceiling, without sills and lintels, reaching up to the ring beam without any additional supports. Upstairs, the windows also reach the ceiling but have sills. Partitions are made of ceramic Porotherm 11.5 Profi and Porotherm 8 Profi. Floors throughout the house, including bathrooms, are designed with oak parquet laid in a "belt" pattern. The roof is insulated with mineral wool, sloped towards the neighbor where the gutter is located. The remaining three edges of the roof have a parapet. The roof is designed as an extensive green roof to protect the waterproofing layer, accumulate water, and prevent the house from overheating. The house is heated by underfloor heating combined with convectors under the windows. The heat source for heating and hot water will be a gas condensing boiler. A wood-burning fireplace is designed as a supplementary heat source.

Project name: Family House in Jaroměř
Client: Private investor
Location: Jaroměř
Timeline: Project 2019-2020, realization 2024
Authors: Josef Krejčí, Michal Šrámek



© 2017 Ateliér Šrámek a Krejčí      powered by Petr Kubík      přihlášení